该距离为谷歌地图计算结果,可能会与实际有偏差
公寓紧邻雷丁大学,步行即可抵达校园,生活与学习之间的切换轻松自如,周边有多家商店和超市,满足日常餐饮购物需求,让留学生活更添便利与色彩。
地理位置
New Century Place 坐落于雷丁大学周边区域,生活氛围浓厚,交通便捷,无论是上学还是出行都十分省心。
至雷丁大学:步行约6分钟
至白骑士校区(Whiteknights Campus):步行约20分钟
至最近公交车站:步行约2分钟
公寓设施
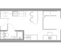
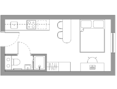
房间内部设施方面,New Century Place 提供全部为独立卫浴与独立厨房的Studio房型,保障每位住户的私密与自在。每个房间配备小双人床、书桌、衣柜,以及设备齐全的厨房,满足日常起居与学习所需。窗户可开启,通风良好,室内采光充足,营造舒适居住体验。
公寓公共设施丰富多元,涵盖私人电影放映室及安静的学习区,满足您休闲与学习的不同需求。此外,还设有公共party房,可与朋友一起烹饪、聚会;露天阳台更是夏日享受阳光、小聚聊天的理想场所。租金已包含水费、电费、燃气费及网络费用,让您入住无忧。
周边生活
公寓周边生活机能完善,区域氛围宁静而充满活力,既适合专注学习,也方便日常采买与社交。附近有众多餐饮选择与超市,轻松满足中餐及其他口味需求。该区域治安良好,生活安全有保障,让您安心享受留学生活的每一刻。
公寓租金包含水费,电费,燃气费,网费,提供免费的健身房,私人电影放映室,安静的学习室。公共区域的party房,可以和朋友一起做饭,办party,公寓还有露天阳台,夏天时候可以和朋友一起享受阳光。
公寓全部是独立卫浴和独立厨房的Studio,每个房间均提供小双人床,桌椅和衣柜,厨房设备齐全,满足你的生活所需。
距离公交车站仅需步行2分钟
步行仅需6分钟即可到达雷丁大学
步行距离白骑士校区(Whiteknights Campus)约20分钟















Gravity Co-living Royal Heights£1540/周起
Kendrick Hall£193.06/周起
Crown House(Reading)£204/周起
